Мы предлагаем услугу профессионального замера помещений. Замер помещений позволит грамотно разместить желаемую мебель и эффективно задействовать всю рабочую площадь.
Учитывая ваши желания и полученные данные, дадим рекомендации по моделям нашей мебели и спроектируем план оснащения помещения с соблюдением всех нормативных документов — ГОСТов и СНИПов.
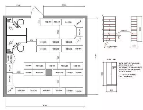
Информацию от специалистов предоставим в виде наглядной схемы с подробными комментариями, чтобы всё было понятно.
Если у вас уже есть схематичный план помещения, вы можете отправить его нам на почту info@rsteel.ru и менеджер дистанционно проработает заявку: предложит схему расстановки, сделает расчёт стоимости.
Сколько стоят выезд специалиста и услуги по замеру?
Стоимость услуги формируется индивидуально и зависит от двух основных факторов: местоположения помещения и его площади. После получения заявки менеджер предоставит точную информацию.
При покупке нашей мебели услуги по замеру и проектированию осуществляются бесплатно.
Как оформить услугу?
Оставить заявку на замер можно любым удобным для вас способом:
-
Заполнить форму внизу страницы.
-
Позвонить по номеру телефона +7 (343) 310-25-09.
-
Отправить заявку на почту info@rsteel.ru.
В заявке не забудьте указать желаемую дату и время, когда вам будет удобно принять специалиста.
|
Оформите заявку на сайте, мы свяжемся с вами в ближайшее время и ответим на все интересующие вопросы.
|
Заказать услугу
|

